文章版权:润天环保 发布者:润天环保 发布时间:2017-07-31 16:20:53
此方案润天环保版权所有

RDF是垃圾衍生燃料(Refuse Derived Fuel)的简称,是通过对生活、工业等垃圾的破碎及分选,从垃圾中除去金属、玻璃、砂土等不燃物,将垃圾中的可燃物破碎、干燥,最终制成。具有热值高、燃烧稳定、易于运输、易于储存、二次污染低和二噁英类物质排放量低等特点。美国于1988 年建成日处理2000t的RDF工厂。 1983年美国检查及材料协会(ASTM)开始按城市生活垃圾衍生燃料的加工程度、形状、用途等将RDF 分成7类。并在接下来的20年间逐渐形成了目前使用的一系列标准。
中国是世界上垃圾包状最沉重的国家之一,中国城市生活垃圾年产量达15亿吨。仅北京市日产生活垃圾总量已达2.09万吨,相当于两座半景山的体积。自70年代以来,我国开始采用填埋法处理城市生活垃圾,由此导致城市历年的垃圾堆存量高达66亿吨,侵占35亿平方米土地,已有的大中城市陷入垃圾包围,有的城市不得不把垃圾堆存到乡村,由此造成城市垃圾公害变成了乡村公害。还有某些早年间建设的简陋垃圾填埋场已经出现泄露问题,造成了城市垃圾的二次污染,导致城乡结合带区域生态环境恶化,因此对陈腐生活垃圾的综合治理势在必行。2021年7月,国家发改委发布《“十四五”循环经济发展规划》,到2025年我国将大幅提高大宗固废综合利用率至60%,并将推进城市废弃物协同处置,其中包括推进水泥窑、冶炼窑炉协同处置生活垃圾等。水泥窑协同处置作为一种新兴废弃物处置手段,能够在水泥熟料生产的同时实现固体废物的无害化处置。在减碳目标下,水泥窑协同处置新鲜城市垃圾、陈腐城市垃圾或将迎来新的发展契机。
由于我国目前新鲜生活垃圾收集并未真正实施分类、并且存在垃圾桶露天敞口放置、垃圾转运站设施差别大等客观条件。因此我国新鲜城市生活垃圾和发达国家相比差别较大。从上海老港填埋厂收集的新鲜生活数据来看,首先,垃圾成分随机波动大,仅看塑料占比,2月份占比最低约50%。5月份占比最高约75%。其次,垃圾含水率随季节波动大,冬季含水率最低可达47 % ,夏季含水率最高可至56 % ,受降雨量影响明显。另外,新鲜生活垃圾的低位热值波动大,冬季热值最高可达6200KJ/kg,夏季热值最低可至4200KJ/kg。
从上海老港生活垃圾填埋场陈旧生活垃圾可以看出以下特点:首先,垃圾填埋3年就已经不含厨余成分,几乎没有臭味。其次,垃圾填埋3年热值可达13000 KJ/kg,填埋10年热值可达17000 KJ/kg。第三,陈旧垃圾挖出后,筛分分选时物料外水会急剧蒸发,无需干燥设备。填埋10年垃圾分选后含水率可从25%下降到15%,是优质替代燃料。
润天环保生活垃圾制RDF系统得到的成品RDF,送入实验检测后可获得如下结论:RDF与煤粉相比,其灰份高,固定碳低,干基发热量大致为10000 KJ/kg,煤粉约是其2.5倍。煤粉呈球形其直径约50μm,而RDF的粒径普遍是煤粉的200倍以上,且球形度和均匀度很差。同等热量RDF燃烧需要的空气量和产生的烟气量是煤粉的54.4%和83%,因此水泥窑使用RDF时可降低通风量。含水率45%的RDF是在水泥窑内自持燃烧的平衡点,开始提供正热值。
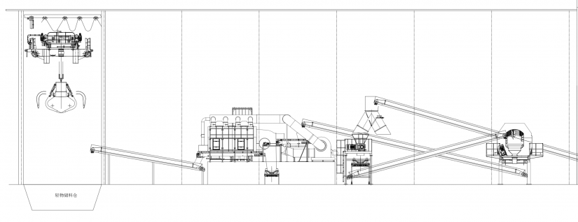
本工艺通过发酵、破碎、风选、筛分、挤压等工序将一般生活垃圾加工成RDF,作为替代燃料供应水泥、钢铁、发电等高耗能工业。在垃圾能源化的同时促进煤炭替代,节能减排,助力双碳目标,实现工业绿色发展。本工艺满足 22t/h 的生产能力。一级粗破碎机:适用于复杂工况下的粗破碎机,独特的刀型设计与排列组合,独立轴的变速变相运行程序,刀具独特的锻造工艺与热处理工艺以及与物料接触区域增加耐磨层,解决了目前市场同类产品遇到的各种痛点问题,诸如机器卡死、出料尺寸大、缠绕堵料、产能低、刀具磨损快等,有效降低客户停机成本、运行维护成本。双轴剪切破碎机:采用电机+行星减速机驱动模式,转速低,扭矩大,可用于强度高,物料 复杂的破碎工作,尤其对于皮革纺织柔性物料具有很好适用性;简单的动力 传动模式,极大降低了设备故障,确保破碎机的可靠持久运行,具体表现为 产量的稳定和出料尺寸波动范围小。磁选机:分选出不具有热值但具有高回收价值的铁金属物质,同时避免铁影响后 段工序质量,如细破碎、成型,甚至影响成品燃料的品质。风选:轻重物质分选效果好,能分选出非可燃性物质,如石头、石块及金属等。挤压机:将通过液压提供的高压力及挤压腔将风后的可燃物;进行挤压,进一步降低可燃物含水率。