文章版权:润天环保 发布者:润天环保 发布时间:2017-07-31 16:02:33
此方案润天环保版权所有

2014年最新的《国家危险废物名录》中的危险废物共有49类。危险废物如果不规范处置会对环境造成极大危害:一是破坏生态环境。随意排放、贮存的危废在雨水地下水的长期渗透、扩散作用下,会污染水体和土壤,降低地区的环境功能等级。二是影响人类健康。危险废物通过摄入、吸入、皮肤吸收、眼接触而引起毒害,或引起燃烧、爆炸等危险性事件。长期危害包括重复接触导致的长期中毒、致癌、致畸、致变等。三是制约可持续发展。危险废物不处理或不规范处理处置所带来的大气、水源、土壤等的污染也将会成为制约经济活动的瓶颈。按照生态环境部每年披露的危废产生量来看,随着中国工业和经济规模的不断扩大,2010年-2017年危废产生量从1587万吨增加到5480万吨。
2012.10环保部《“十二五”危险废物污染防治规划》提出鼓励使用水泥回转窑等工业窑炉协同处置危险废物。2013.10国务院《关于化解产能严重过剩矛盾的指导意见》支持利用现有水泥窑无害化协同处置城市生活垃圾和产业废弃物,协同处置生产线数量比重不低于10%。2014.5国家发改委等7部委《关于促进生产过程协同资源化处理城市及产业废弃物工作的意见》推进利用现有水泥窑协同处理危险废物、污水处理厂污泥、垃圾焚烧飞灰等。2016.9工信部《建材工业发展规划(2016-2020年)》提出支持利用现有新型干法水泥窑协同处置生活垃圾、城市污泥、污染土壤和危险废物等。2016.12国务院《“十三五”生态环境保护规划》提出“支持水泥窑协同处置城市生活垃圾”,“引导和规范水泥窑协同处置危险废物”。2017.4国家发改委等14部委《循环发展引领行动》提出推进生产系统协同处理城市及产业废弃物。因地制宜推进水泥行业利用现有水泥窑协同处理危险废物、污泥、生活垃圾等。
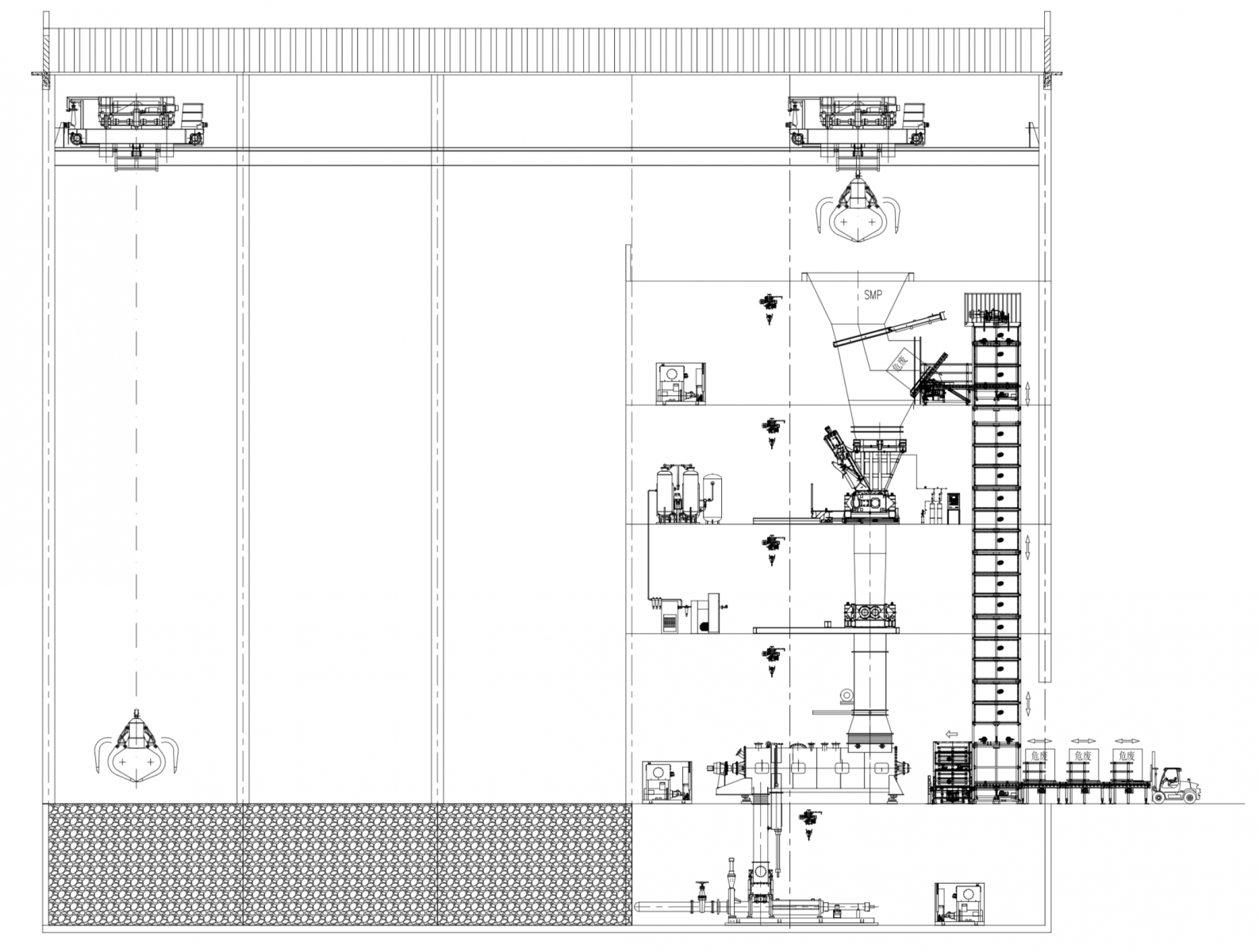
SMP(Shredding-Mixing-Pumping)系统,中文是破碎混合泵送处理预系统。
系统包括三个主要单元和两个辅助单元,主要单元为破碎单元、混合单元、泵送单元,辅助单元为氮气保护单元、除臭单元。SMP设计的初衷是希望对成分复杂的危险废物统一进行预先的破碎和混合均质,并采用泵送的方式将热值波动小的混合物通过管道输送,连续、稳定的投入焚烧炉处置,使焚烧状态连续、稳定和易于控制,降低结 焦的频率,提升耐火砖寿命,减少尾气超标排放的风险,从而解决由于收集的危险废物的热值变化范围非常大,造成焚烧系统控制难度很大的问题——焚烧炉内频繁结焦,系统无法连续运行,必须在投料运行一段时间后对整个系统进行停机、 清理并重新投料,同时,造成耐火砖使用寿命短,尾气容易超标排放。
SMP系统的作用与效益:
*入窑前对各种废料进行调质、调热、均质化处理,易于输送
*粘稠状、浆渣状、泥状废料更容易输送和处理
*提高焚烧装置的操作弹性及处理能力
*改善窑内燃烧状态的控制,降低窑内超压的风险、稳定窑况
*减少、避免高热值桶装废料焚烧过程中的CO排放波峰
*减少回转窑停机检修耐火材料的时间
*改善操作环境,减少人员于废料的直接接触,危废输送过程中人员的工作量
*减少废料重新包装、桶装废物切割开桶过程中人员与废料接触 。
一级双轴预破碎机:采用电机+行星减速机驱动模式,转速低,扭矩大,可用于强度高,物料 复杂的破碎工作,尤其对于皮革纺织柔性物料具有很好适用性;简单的动力 传动模式,极大降低了设备故障,确保破碎机的可靠持久运行,具体表现为 产量的稳定和出料尺寸波动范围小。
二级双轴细破碎机:采用更薄刀具,将经一次预破的物料进一步破碎至理想尺寸,二级破碎 机同样具有转速低,扭矩大、可靠性高、维护成本低等多重优点。

润天环保可提供“危险废物SMP系统”工程总承包交钥匙服务模式。
