文章版权:润天环保 发布者:润天环保 发布时间:2017-07-31 16:13:30
此方案润天环保版权所有

城市污水处理厂在污水处理的过程中会产生大量市政污泥。传统污水处理工艺产生的市政污泥为含水量在75~85%不等的黑褐色胶状物质。污泥中的固体成分主要由有机残片、细菌菌体、无机颗粒、胶体及絮凝所用药剂等组成,是一种以有机成分为主,组分复杂的混合物,其中包含有潜在利用价值的有机质、氮(N)、磷(P)、钾(K)和各种微量元素,但同时也含有大量寄生虫卵、病毒微生物,重金属等有毒有害物质不能直接利用。未经无害化处理的污泥的随意丢弃会散发恶臭、滋生蚊虫对周边环境造成严重的二次污染,污泥与土壤接触会造成土壤污染,其中的重金属被动物食用、植物吸收后可直接进入人体。污泥被雨水冲刷后流入河道、混入地下水会污染饮用水源,严重威胁人民身体健康。未经无害化处理的污泥由于其堆积角小,存在一定流动性,直接进入生活垃圾填埋场会造成填埋场滑坡,容易引发工程事故。污泥与进入生活垃圾填埋场与生活垃圾进行混合填埋,无害化处理到含水率60%以下。且比例需小于等于8%,污泥作为生活垃圾填埋场覆盖材料需无害化处理到含水率45%以下。
工业污泥根据其来源,有着非常大的差异,其中很多都属于危险废物的范畴。这些差异主要表现在其粘度、吸湿性、污染物性质、含油率、含水率、有机质比例、无机物比例等多方面。比较市政污泥来说,工业污泥粘度大、含油率高、无机物比例高,有时处理难度更高。按照来源分类,目前亟待解决的产量大的工业污泥有多种,包括含油污泥、酸洗及电镀污泥、化学及制药污泥、制革、屠宰、发酵、食品等与我们生活息息相关的多行业产生的污泥。
污泥是介于液体和固体之间的半固态浓稠物,是非牛顿流体。污泥无法用普通的水泵或渣浆泵输送,也无法使用普通的平底或锥底自流料仓完成储存及出料。 含水率在70%以上的城市污泥可通过使用润天环保“湿污泥仓储泵送系统“实现对城市污泥高标准、无污染、环保、卫生的存储及长距离管道输送。 污泥仓储和泵送系统由储料仓、固体泵、除杂器、喷枪、自动控制系统辅以检修闸板、螺旋给料机、管路切换器、综合液压站等设备组成,是一套高自动化的高科技环保系统。
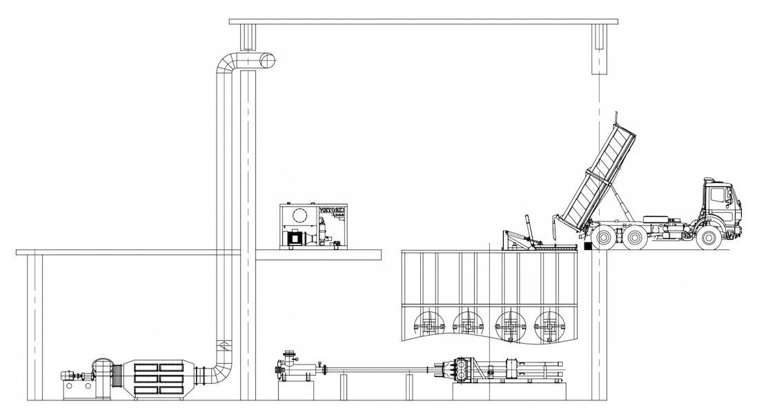
含水率低于70%的城市污泥或较干燥的各种工业污泥及含有大块杂物的污染土可通过使用润天环保“重型仓储输送系统“实现对城市污泥高标准、无污染、环保、卫生的存储及长距离管道输送。
重型仓储和泵送系统由重型滑架储料仓、污泥专用全密闭大倾角皮带机、喷枪、自动控制系统辅以检修闸板、螺旋给料机、管路切换器、综合液压站等设备组成,是一套高自动化的高科技环保系统。
主要设备有:
湿污泥滑架矩形搅拌料仓
湿污泥滑架圆形料仓
重型滑架料仓
雷龙双柱塞污泥泵
专业全密闭大倾角皮带机
螺旋给料机
管路切换器
污泥给料喷枪

